Over 50 Years of World-class Innovation and Science Education

The Wallace Astrophysical Observatory is an internationally renowned teaching and research facility founded in 1971 and run by the Planetary Astronomy Lab in the Department of Earth, Atmospheric and Planetary Sciences (EAPS) at the Massachusetts Institute of Technology (MIT). The Observatory in Westford, Massachusetts provides hands-on planetary astronomy research experiences for MIT students. Additionally, the Observatory partners with local K-12 groups with the goal of sparking curiosity about the stars to inspire a future generation of scientists.

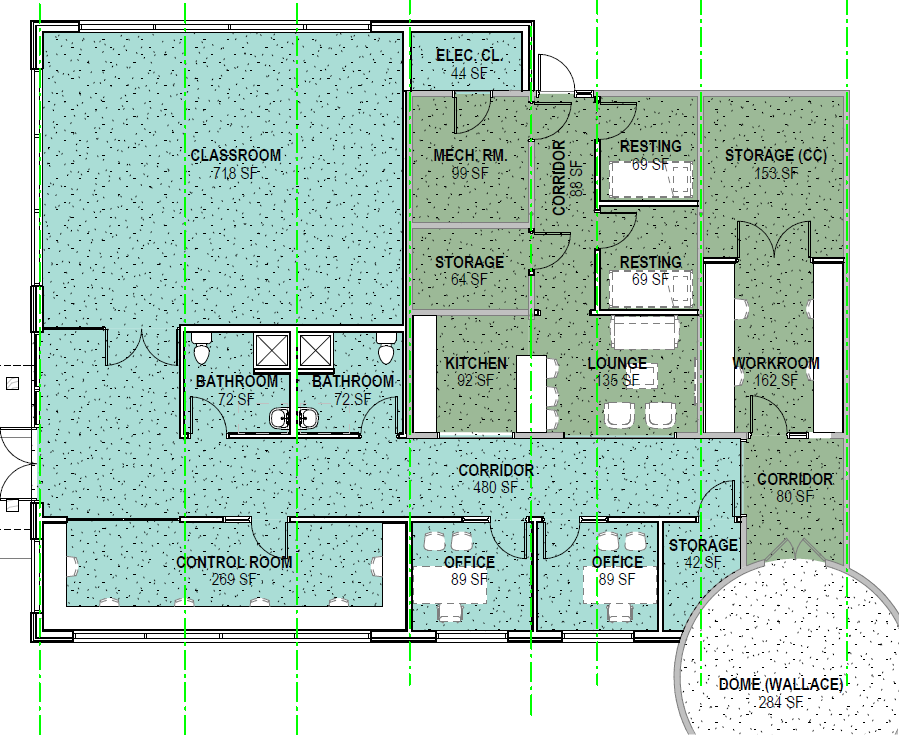
image of Expansion blueprints

 “For over 5 decades, the Wallace Astrophysical Observatory has played a key role in shaping the minds of young researchers and educators – many of whom have gone on to make important contributions in the fields of planetary science and astronomy. For MIT to continue attracting the best and brightest young scientists, we need to make sure our facility offers state-of-the-art capabilities.”  Dr. Michael J. Person, Director of Wallace Astrophysical Observatory, '92, SM '01, PhD '06


Growth  and Expansion  

Despite steady enhancements to telescopic equipment and teaching methodologies over five decades, Wallace’s physical plant has not benefited from any significant infrastructure improvements since its launch. The Observatory serves a growing number of undergraduate and graduate students at MIT from across the Institute, yet critically lags in offering educational and research facilities that match the needs and expectations of these future astronomers. Currently, teaching mostly takes place outdoors, and accommodation for overnight student observers is limited. 

Interest in planetary sciences has been steadily increasing, opportunities for exciting original research are expanding, and student demand is soaring. At the same time, requests for K-12 STEM and public outreach programs is on the rise, yet we are unable to adequately serve these young scientists in the making. To keep pace, Wallace urgently needs to upgrade its teaching and physical plant facilities so all students can reach their full potential. 

Our goal is for MIT’s Wallace Astrophysical Observatory to remain New England’s premier planetary observatory and continue providing an engine for innovative planetary discovery while inspiring future explorers.


Rendering of Wallace Expansion plans

Support the Wallace Observatory Expansion Fund

Support future planetary research and education by making a gift to help us build a new classroom to accommodate larger class sizes and seminars for the public, overnight facilities, an observation deck to host undergraduate classes and star-gazing tours, a control room for robotic telescopes, and a dedicated climate-controlled storage space for sensitive astronomical equipment. We are targeting $6M to achieve this vision.
If you would like to support our mission, please contribute to the Wallace Observatory Expansion Fund.  If you would like more information on how you can help, please contact Director Michael Person (mjperson @ mit.edu) Thank you!

side profile of wallace expansion



Clear Skies!

Copyright © 2023 · All Rights Reserved · MIT George R. Wallace Jr. Astrophysical Observatory